Saturday, March 22nd

Register Now
Men's Conference 2025
Join us for our one-day Men's Conference designed to equip and encourage you to lead with boldness and integrity. Through worship, impactful speakers, and interactive breakout sessions, we’ll dive into what it means to be the man God has called you to be—in your home, workplace, and community.
This isn’t just another event—it’s an opportunity to grow, connect, and step into your purpose. Plus, we’ll have a BBQ lunch and time to build relationships with other men.
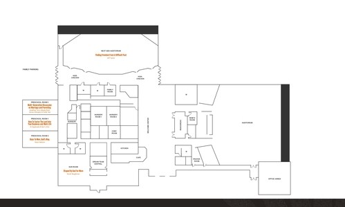
Breakout Map (select image)

Breakout Sessions
Location: Next Gen Auditorium
Breakout Speaker: Jeff Lyons
Title: Finding Freedom From A Difficult Past
Description: Our past does not define our future. By following God’s lead, we can let go and let Him blaze the trail ahead. The best is yet to come!
Breakout Speaker: Jeff Lyons
Title: Finding Freedom From A Difficult Past
Description: Our past does not define our future. By following God’s lead, we can let go and let Him blaze the trail ahead. The best is yet to come!
Location: Preschool Room 3
Breakout Speaker: Aaron Watson
Title: Boys To Men, God’s Way.
Description: “Here’s a heavy thought…we, as fathers, are the first representation of the Father to our children. How can we maximize our time with our children so that we effectively point them toward Jesus? We’ll look at a way of living that calls our children into a life of discovering who Jesus says they are.
Breakout Speaker: Aaron Watson
Title: Boys To Men, God’s Way.
Description: “Here’s a heavy thought…we, as fathers, are the first representation of the Father to our children. How can we maximize our time with our children so that we effectively point them toward Jesus? We’ll look at a way of living that calls our children into a life of discovering who Jesus says they are.
Location: Preschool Room 4
Breakout Speaker: Al Sepalvado & Bart Little
Title: How To Factor The Lord Into Your Business and Work Life
Description: Come hear two successful business men talk about how they keep the Lord and His principles as a first priority in their business life.
Breakout Speaker: Al Sepalvado & Bart Little
Title: How To Factor The Lord Into Your Business and Work Life
Description: Come hear two successful business men talk about how they keep the Lord and His principles as a first priority in their business life.
Location: Sunroom
Breakout Speaker: Derek Baughman
Title: Shaped By God For More
Description: You were made for more—not for comfort, but for purpose. Scripture shows how God shapes men through trials, breaking and remaking them into mighty leaders. Our seasons of suffering are not signs of God's absence; rather, they are evidence of His refining work to complete us. If you’ve ever questioned the suffering you’ve seen or experienced, join us as we uncover how it prepares you for more.
Breakout Speaker: Derek Baughman
Title: Shaped By God For More
Description: You were made for more—not for comfort, but for purpose. Scripture shows how God shapes men through trials, breaking and remaking them into mighty leaders. Our seasons of suffering are not signs of God's absence; rather, they are evidence of His refining work to complete us. If you’ve ever questioned the suffering you’ve seen or experienced, join us as we uncover how it prepares you for more.
Location: Preschool Room 5
Breakout Speaker: Jonathan Terry, Woody Rust, James Gillespie, & Clyde Tew
Title: Multi-generation discussion on Marriage and Parenting
Description: Newly married or Golden years? Expecting parent or prodigal child? Join three men from different stages of life as they discuss God's guidance and wisdom in marriage and parenting. There will be plenty of opportunity for Q&A and prayer after the panel discussion.
Breakout Speaker: Jonathan Terry, Woody Rust, James Gillespie, & Clyde Tew
Title: Multi-generation discussion on Marriage and Parenting
Description: Newly married or Golden years? Expecting parent or prodigal child? Join three men from different stages of life as they discuss God's guidance and wisdom in marriage and parenting. There will be plenty of opportunity for Q&A and prayer after the panel discussion.



